|
|
|
|
Специалистами ООО "ПАРСЕК" разработан дозиметр-радиометр ионизирующего излучения «РЕГУЛ G 350».
|
|
|
|
Автономная установка катодной защиты "Пульсар-АС"
|
|
Автономная установка катодной защиты (АУКЗ) «Пульсар-АС» предназначена для работы в составе системы коррозионного мониторинга и обеспечения катодной защиты стальных магистральных трубопроводов и подземных металлических сооружений в условиях отсутствия доступа к внешним источникам электроснабжения или в условиях их низкой надежности, использующая газ, транспортируемый по магистральным трубопроводам, в качестве топлива.

Базовый состав АУКЗ включает:
- оборудование электрохимической защиты: устройство коррозионного мониторинга и/или устройство дренажной защиты;
- электрогенераторную установку (ЭГУ);
- модуль управления электрогенераторной установкой (МУЭГУ);
- распределительный шкаф (ШР-АС);
- центральный блок управления (БУ-АС);
- сенсорную панель управления;
- аппаратуру системы теплорегулирования (отопления и вентиляции);
- батареи аккумуляторные.
Все оборудование размещено в утепленном модульном каркасном контейнере полной заводской готовности.
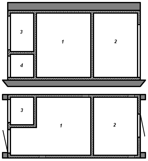
Модульный каркасный контейнер имеет 4 независимых функциональных отсека:
1 - Отсек электрогенераторной установки;
2 - Отсек оборудования электрохимической защиты и управления;
3 - Отсек внешнего тепловентилятора, предназначенного для отвода излишней тепловой энергии и поддержания рабочей температуры воздуха в помещении;
4 - Отсек для инструмента и запчастей.
Модульный каркасный контейнер оснащен автоматической системой пожарной сигнализации. По требованию заказчика в отсеках электрогенераторной установки и оборудования ЭХЗ может быть установлена система автоматического газового пожаротушения (ОТВ – СО2).
По требованию заказчика модульный каркасный контейнер может устанавливаться на специальную металлическую раму высотой 1м с лестницами.


Общий план расположения оборудования

Основные технические характеристики АУКЗ «Пульсар-АС»
| Номинальная электрическая мощность ЭГУ |
4,8 кВт (±5%) |
| Характеристики выходного тока |
230В/400В, 50Гц |
| Топливо |
Природный газ, ГОСТ 5542-87, СТО Газпром 089-2010 |
| Давление подачи газового топлива |
0,002 – 10,0* МПа |
| Потребление топлива |
1,2-2,6 нм3/ч |
| Тепловая энергия |
~10 кВт |
| Электрическая эффективность (КПД) ЭГУ |
27% |
| Интервал обслуживания |
6000 часов |
| Размеры (AxBxC по рис.), не более |
6058х2450х3000 мм |
| Климатическое исполнение по ГОСТ 15150 |
Категория У1 или УХЛ1 |
* – при давлении газа более 0,003 МПа (3 кПа) устанавливается устройство подготовки газа УПГ

Система электроснабжения АУКЗ «Пульсар-АС»
Возможны три варианта энергоснабжения оборудования электрохимической защиты в составе АУКЗ (выбор режима работа осуществляется на этапе проектирования):
1. Автономный режим работы – работа от встроенной основной электрогенераторной установки. В этом случае обеспечена II категория электроснабжения. В случае отказа ЭГУ, питание АУКЗ автоматически осуществляется от аккумуляторных блоков, которые поддерживают работоспособное состояние блока управления, средства связи, собственные нужды и систему ЭХЗ в течение 10-15 часов, в зависимости от режима работы оборудования ЭХЗ.
2. Автономный режим работы с дополнительным внешним генератором, который при аварийном отключении основной ЭГУ обеспечит энергоснабжение оборудования АУКЗ. В данном случае обеспечена I категория электроснабжения. Резервный электрогенератор в штатный комплект поставки не входит.
3. Работа от линий электропередач с использованием основной электрогенератоной установки, находящейся в составе АУКЗ, в качестве резервного источника электроснабжения. В данном варианте обеспечена I категория электроснабжения.
Преимущества применения АУКЗ «Пульсар-АС»:
1. Экономические
- Применение АУКЗ «Пульсар-АС» снижает затраты в среднем до 4 раз относительно строительства 3-х км воздушных ЛЭП
2. Экологические
- Выбросы отработанных газов ЭГУ в атмосферу в 10 раз меньше дизельного двигателя;
- Низкий уровень шума — 60 65 дБ;
- Меньшее вмешательство в природный ландшафт по сравнению с прокладкой ЛЭП
3. Эксплуатационные
- Высокая степень автоматизации;
- Способность работы без технического обслуживания в течение 6000 часов;
- Минимальные требования к подводимому газу;
- Возможность врезки в трубу под давлением;
- Высокая степень безопасности;
- Возможность использования генерируемой тепловой энергии для обогрева производственных зданий.
Патент на полезную модуль
|
|
    
|
|
|