|
|
|
|
Специалистами ООО "ПАРСЕК" разработан дозиметр-радиометр ионизирующего излучения «РЕГУЛ G 350».
|
|
|
|
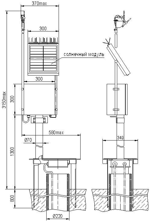
Контрольно-измерительные пункты устройства КИП-А
|
|
Устройство "КИП-А" предназначено для:- контроля и преобразования в код параметров катодной защиты подземного трубопровода;
- обмена командами и данными.
Технические характеристики:

● Прибор осуществляет автоматическое преобразование в код, отображение результатов преобразования следующих величин:
- поляризационного потенциала (Uпп) по методу вспомогательного электрода;
- суммарного потенциала (Uсум);
- тока поляризации (Iп) вспомогательного электрода;
- активного сопротивления (Rк);
- сопротивления пластины индикатора ДК-1ц, температуры грунта, (скорость коррозии определяется расчетным методом).
● Датчиками служат неполяризующийся медно-сульфатный электрод типа ЭНЕС, блок пластин-индикаторов коррозии типа БПИ-2.(для «КИП-А», «КИП-А-01»), индикатор коррозии Дк1-ц (для «КИП-А-03»).
● Обмен командами и данными производится по радиоканалу:
- диапазон частот рабочего канала от 433,1±0,05 до 434,2±0,05 МГц;
- канальный разнос 100 кГц;
- количество каналов – 12;
- выходная мощность передатчика от 8 до 10 мВт;
- чувствительность приемника при 0,1% BER - минус 100 дБм.
● Входное сопротивление для параметра Uсум не менее 10 МОм.
● Питание устройства осуществляется от аккумулятора с номинальным напряжением 6 В.
● Подзарядка аккумулятора осуществляется от солнечного модуля.
● Устройство обеспечивает подавление помехи с частотой 50 Гц не менее 40 дБ.
● Предусмотрен энергосберегающий режим в период между проведением измерений.
Условия эксплуатации:
● Температура окружающей среды - от минус 45°С до +50°С;
● Относительная влажность воздуха – до 95 % при температуре +25°С.
● Степень защиты устройства по ГОСТ 14254-IP55. Климатическое исполнение может быть изменено по требованию заказчика.
Конструктивное исполнение:
1. «КИП-А-01», "КИП-А-03" – предназначен для установки на линейной части газопровода.
● Режим работы - непрерывный;
● Корпус – пластик (не поддерживает горение);
● Габаритные размеры – 2500х210х210 мм;
● Масса устройства – не более 18 кг.
2. «КИП-А» – предназначен для установки на охраняемой территории.
● Режим работы - непрерывный;
● Корпус – углеродистая сталь;
● Масса устройства – не более 25 кг.
|
|
    
|
|
|